zde se nacházíte:
Úvod > Prodáno

Polovina RD, 4+kk, Doubek, okr. Praha-východ

  • Evid. číslo ASRD5007930
  • Prodej / Pronájem Prodej
  • Plocha 103 m2
  • Plocha pozemku 573 m2
  • Typ Rodinný dům
  • Druh Polovina rd
  • Město Doubek
  • Okres / obvod Praha-východ
  • Obec / Měst. část Doubek
  • Ulice Doubek
  • Budova Dřevěná
  • Stav objektu Velmi dobrý
  • Vlastnictví Osobní
  • Zařízený Ne
  • Typ domu Přízemní
  • Poloha objektu Klidná část obce
  • Počet bytů 1
  • Plocha zastavěná 120 m2
  • Plocha podlahová 103 m2
  • Topení Lokální - tuhá paliva, lokální - elektrické
  • Elektřina 220
  • Voda Voda v objektu, teplá a studená voda
  • Odpad Obecní kanalizace
  • Plyn Ne
  • Občanská vybavenost Škola, školka, zdravotnické zařízení, pošta, supermarket, kompletní síť obchodů a služeb
  • Průkaz energetické náročnosti budovy B - Velmi úsporná
více méně

Popis nemovitosti

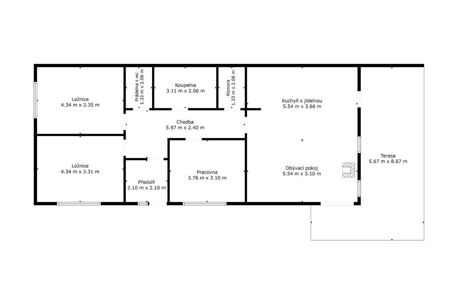
Moderní dřevostavba pro rodinný život bez kompromisů. Ve výhradním zastoupení majitele vám nabízíme ke koupi stylový rodinný dům 4+kk o užitné ploše 103,3 m2, který spojuje moderní technologie, útulnou atmosféru a klidné rodinné zázemí. Dům je zasazený do pečlivě udržovaného pozemku o velikosti 573 m2 v tiché lokalitě s výbornou dostupností do Prahy – ideální pro ty, kteří chtějí žít blízko přírody, ale zároveň v dosahu všeho potřebného. Dispozice a technické vychytávky Promyšlená dispozice 4+kk: prostorný obývací pokoj s kuchyňským koutem, tři samostatné pokoje, koupelna a technická místnost. Výměry jsou následující - zádveří: 4,2 m2, technická místnost a WC: 2,7 m2, chodba: 10 m2, komora: 2,2 m2, koupelna: 6,4 m2, obývací pokoj + kk: 36,9 m2, ložnice: 11,8 m2, pokoj: 14,1 m2, pokoj: 14,1 m2, WC: 1,9 m2 a místnost na fotovoltaiku 3,17m2. Podlahové vytápění v hlavních obytných zónách, v ostatních místnostech efektivní konvektory Stylová krbová kamna s výkonem pro celý dům – teplo domova v pravém slova smyslu Energetická třída B = nízké náklady, vysoký komfort 20 solárních panelů (výkon 10 MW) – elektřina z vlastní střechy, při slunečném počasí soběstačnost zaručena Zahrada, která má styl Terasa je jako stvořená pro letní posezení s přáteli Venkovní gril a pec na pizzu – každé jídlo se mění v zážitek Parkování až pro 4 vozy na vlastním pozemku Dvě praktická krytá stání pro nářadí a techniku Zahrada upravená s citem pro detail – funkční i estetická Lokalita, která má co nabídnout Klidné prostředí obklopené přírodou – ideální pro procházky, cyklovýlety i houbaření Oblíbená restaurace s kulturním programem přímo v obci – večery zde mají atmosféru Kompletní občanská vybavenost v nedalekých Říčanech a Mukařově V blízkosti přírodní koupaliště Vyžlovka, Jevany a romantický lom Žernovka Praha na dosah – výborné dopravní spojení Tento dům je ideálním domovem pro rodinu, která hledá klid, pohodlí a zdravý životní styl v kombinaci s moderním standardem. Rádi vám ho osobně představíme – kontaktujte nás pro termín prohlídky.